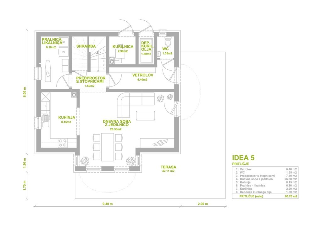
Neto površina: 117,50 m2 |
Zazidalna površina: 76,80 m2 |
Streha: Dvokapnica, 40º |
Višine: Sleme: +7,50 m |
Etažnost: P + M |
Pošljite povpraševanje / potrebujete pomoč? Pišite nam
Spletno mesto uporablja piškotke, da lahko razločujemo med obiskovalci in izboljšujemo delovanje strani. Z uporabo strani soglašate z uporabo piškotkov.