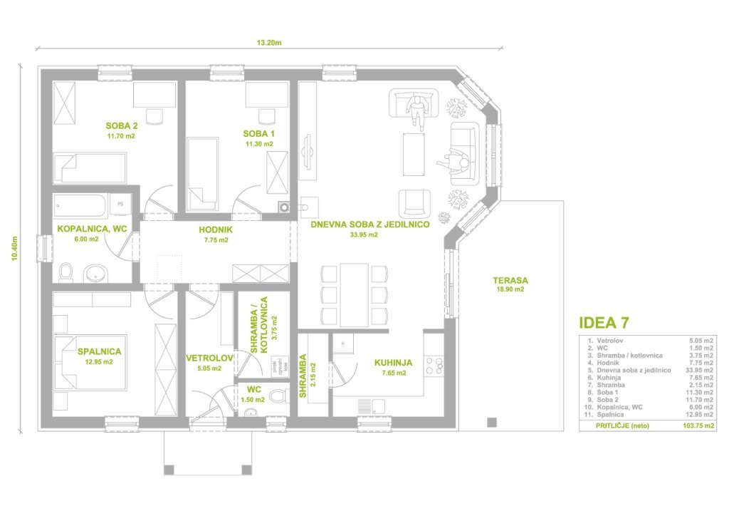
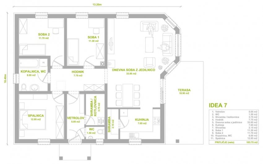
Neto površina: 103,75 m2 |
Zazidalna površina: 124,80 m2 |
Streha: Štirikapnica, 35º |
Višine: Sleme: +6,80 m |
Etažnost: P |
Pošljite povpraševanje / potrebujete pomoč? Pišite nam
Spletno mesto uporablja piškotke, da lahko razločujemo med obiskovalci in izboljšujemo delovanje strani. Z uporabo strani soglašate z uporabo piškotkov.